For Sale
Under Contract
6 Chadd Place, Wembley Downs WA 6019
For Sale
Under Contract
32 Gillam Way, Beechboro WA 6063
For Sale
Under Contract
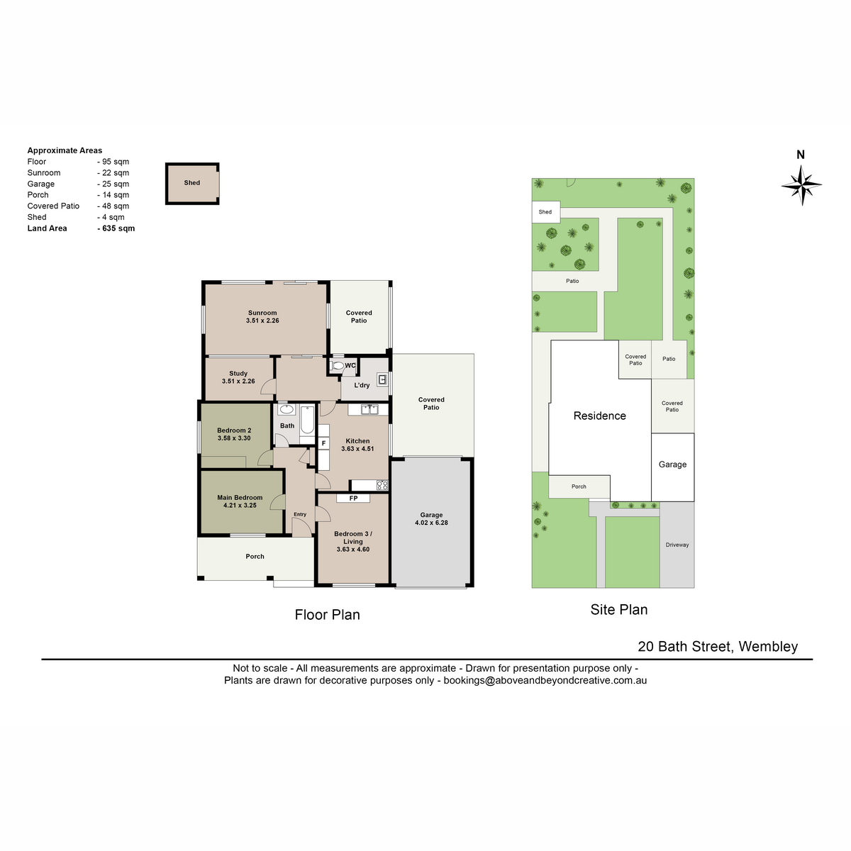
Set on a generous 635sqm block in one of Wembley’s most sought-after streets, this three-bedroom character home offers not only warmth and charm but also exciting scope for the future. Whether you’re looking to move straight in, lease out, renovate, or rebuild (STCA), this address delivers endless potential in a premium lifestyle location.
With Lake Monger, Wembley cafés, schools, and seamless CBD connections via nearby Subiaco and Glendalough train stations, the convenience here is exceptional.
Inside, the home offers a practical layout with a welcoming front living room complete with split-system air conditioning, ceiling fan, and fireplace for comfort. The kitchen and dining area provide plenty of space for the everyday, while a versatile rear sunroom extends the living options and connects easily to the covered patio and expansive backyard - a blank canvas for future development.
Three generous bedrooms (all with ceiling fans, and the main with built-in robe) are serviced by a central bathroom with shower-over-bath and separate toilet, plus a separate laundry.
With its large block size and enviable location, this property represents an outstanding opportunity for buyers.
📍 Property Features:
• 635sqm block in prime Wembley location
• 3 bedroom home to rent out or move in
• Large backyard
Proximity
Lake Monger Primary School 900m
Lake Monger 900m
Glendalough Train Station 2.2km
Osborne Park Precinct 2.2km
St John of God Hospital 2.4km
Woolworths 2.4km
Subiaco Train Station 2.7km
Leederville 3.8km
Woodlands Reserve 5km
Hale School 6.1km
City Beach 6.8km
Schools
Lake Monger Primary School 2.2km
Bob Hawke College 4km
The seller reserves the right to accept an offer prior to the closing date without notice.
Set on a generous 635sqm block in one of Wembley’s most sought-after streets, this three-bedroom character home offers not only warmth and charm but also exciting scope for the future. Whether you’re looking to move straight in, lease out, renovate, or rebuild (STCA), this address delivers endless potential in a premium lifestyle location.
With Lake Monger, Wembley cafés, schools, and seamless CBD connections via nearby Subiaco and Glendalough train stations, the convenience here is exceptional.
Inside, the home offers a practical layout with a welcoming front living room complete with split-system air conditioning, ceiling fan, and fireplace for comfort. The kitchen and dining area provide plenty of space for the everyday, while a versatile rear sunroom extends the living options and connects easily to the covered patio and expansive backyard - a blank canvas for future development.
Three generous bedrooms (all with ceiling fans, and the main with built-in robe) are serviced by a central bathroom with shower-over-bath and separate toilet, plus a separate laundry.
With its large block size and enviable location, this property represents an outstanding opportunity for buyers.
📍 Property Features:
• 635sqm block in prime Wembley location
• 3 bedroom home to rent out or move in
• Large backyard
Proximity
Lake Monger Primary School 900m
Lake Monger 900m
Glendalough Train Station 2.2km
Osborne Park Precinct 2.2km
St John of God Hospital 2.4km
Woolworths 2.4km
Subiaco Train Station 2.7km
Leederville 3.8km
Woodlands Reserve 5km
Hale School 6.1km
City Beach 6.8km
Schools
Lake Monger Primary School 2.2km
Bob Hawke College 4km
The seller reserves the right to accept an offer prior to the closing date without notice.
Whether you’re upgrading, downsizing, investing or selling – we’re here to help you take your next step with confidence. Get in touch! Let’s make your next move a MODERN one.
